油水分离器概述:
随着城市及城市化的发展,宾馆、酒店、食堂的规模日益扩大,数量日益增多,随之产生的餐饮废水量越来越大。餐饮业油污水是指饮食行业在作业过程中所排入下水管道的污水,其特点是动植物油脂(FOG)、总悬浮颗粒(TSS)、化学需氧量(C0D)浓度及含量高,它主要有三大直接危害:
1、堵塞管道:大量的油脂和残渣易粘附在排水管道壁上,日积月累使得管道实际流通面积越来越小,排水量与流速均迅速降低,形成堵塞,据相关资料,我国每个城市区域每天都有上百处因油脂造成的管道堵塞而需要疏通或更换,造成的经济损失巨大。
2、腐蚀管道和产生异味:管道内积累的油脂在化学和生化作用下,随着时间的推移逐渐分解并生成有腐蚀性的脂防酸,这不仅会腐蚀管道,而且会产生刺鼻难闻的异味。
3、导致公共污水处理故障:大量的油脂通过管网进入污水处理厂,使得对油脂十分敏感的生物菌大量变坏、死亡,造成出水水质明显下降并对下游受纳水体造成污染。所以,长期以来餐饮业的含油污水的去油去渣及达标排放问题都是急需解决而又没法彻底解决的大难题。本公司根据需要开发出专门解决以上三大危害的智能油水分离器。
工作原理:
当污水流入除渣仓时,污水中的固体杂物(菜叶等)被截留出去,进入油水分离区以后因油和水本身的密度差使得油和水产生分离,油脂浮升汇集,水由隔板下部进入排水暂存区,再次沉淀以后进入提升仓由排污泵排入室外污水管网。浮油相互吸附堆积到一定厚度后,人工微除。实现了油水分离和油脂的回收。
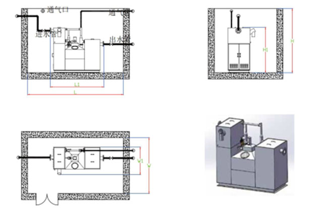
设备组成:
集水箱:箱体为$US304材质,板厚2mm,箱体上有进出水口,排气孔,电缆线出线孔,排污阀等;
提升泵:一般采用潜水式排污泵;
刮油器:采用减速电机+齿轮链条结构,能有效刮油到集油槽;
气浮装置:能加速油和水的分离;
加热装置:在温度较低的环境中能有效防止油脂凝结;
除渣筐:能实现固体杂物和废水的分离;
控制柜:一控二,液位控制,水泵交替运行;
排空阀、浮球开关、集油桶等附件。









冀公网安备13010402002588